売買 中古一戸建て | 名古屋市北区中切町 | 名古屋市の不動産はセンチュリー21 P-EIGHT

名古屋市北区中切町の不動産物件

【中古一戸建て】 NEW! 駐車場あり
価格 1,200万円 (税無)
名古屋市名城線 黒川駅 徒歩28分
スマホ表示
物件コード:167801-1655
所在地 建物面積
土地面積
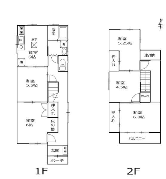
間取り 築年月
愛知県名古屋市北区中切町 88.60m2
88.12m2
5DK 1978/04

物件基本情報

物件種目 中古一戸建て
物件名称 -
所在地 愛知県名古屋市北区中切町
交通
名古屋市名城線 黒川駅 徒歩28分
JR東海交通城北線 比良駅 徒歩31分
名古屋市鶴舞線 庄内通駅 徒歩32分
名鉄小牧線 上飯田駅 徒歩35分
階数 2階建
建物構造 木造
建ぺい率/容積率 60% / 200%
駐車場 有 (1台)
学校 川中小学校 / 志賀中学校
設備・条件
  • ガス:都市ガス
  • 汚水:公共下水
  • 水道:公営水道
  • 雑排水:公共下水
  • ガスコンロ
  • シャワー
  • コンロ二口
  • バルコニー
センチュリー21 P-EIGHT
Tel052-908-3343
お気軽にお問い合わせください。

周辺地図

地図を表示中...
ストリートビュー未対応エリアです。

物件詳細情報

物件用途 居住用 地目 宅地
間取り詳細 - 都市計画 市街化区域
建物向き - 用途地域 第一種住居地域
土地面積基準 公簿 接道 公道 南 幅員5.4m (接面4.85m)
土地権利 所有権 私道面積 -
借地条件 - 道路位置指定 -
地代 - 不適合接道 -
建築確認番号 - セットバック -
現況 空家 国土法届出 不要
引渡時期 相談 取引態様 専属
設備その他 -
特記事項 緑化地域,都市機能誘導区域外,居住誘導区域内
備考 -
公開日 2025/12/13 広告有効期限 2025/12/27
担当者 近藤 裕美
電話でお問い合わせ
センチュリー21 P-EIGHT 店舗情報
[所在地] 愛知県名古屋市北区黒川本通4丁目30番 黒川旗ビル1階
[担当] 近藤 裕美
Tel052-908-3343
お気軽にお問い合わせください。

このページをご覧の方に
おすすめの不動産物件

  •