建築条件無し 駅近 北区東味鋺 売土地(売買 土地) | 名古屋市北区東味鋺 | 名古屋市の不動産はセンチュリー21 P-EIGHT

建築条件無し 駅近 北区東味鋺 売土地 | 名古屋市北区東味鋺の不動産物件

【土地】
価格 1,900万円
名鉄小牧線 味鋺駅 徒歩4分
スマホ表示
物件コード:167801-3996
所在地 坪単価 土地面積 建築条件
土地権利
愛知県名古屋市北区東味鋺 54.3万円 115.72m2
(35.00坪)
なし
所有権

物件基本情報

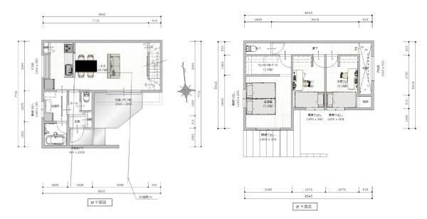
▲区画図
▲建築プラン例
物件種目 土地
物件名称 建築条件無し 駅近 北区東味鋺 売土地
所在地 愛知県名古屋市北区東味鋺
交通
名鉄小牧線 味鋺駅 徒歩4分
JR東海交通城北線 味美駅 徒歩16分
名鉄小牧線 味美駅 徒歩24分
土地面積 115.72m2 (35.00坪)
建ぺい率/容積率 60% / 200%
地目 宅地
都市計画 市街化区域
用途地域 第一種住居地域
最適用途 住宅用地
学校 味鋺小学校 / 北中学校
設備・条件
  • ガス:都市ガス
  • 汚水:公共下水
  • 水道:公営水道
  • 雑排水:公共下水
  • 日当り良好
センチュリー21 P-EIGHT
Tel052-908-3343
お気軽にお問い合わせください。

画像・写真

  • 建築プラン例
    建築プラン例
  • 建築プラン例
    建築プラン例

周辺地図

地図を表示中...
ストリートビュー未対応エリアです。

物件詳細情報

物件用途 - 接道 公道 南 幅員9.09m
地勢 - 私道面積 -
土地面積基準 公簿 道路位置指定 -
借地条件 - 不適合接道 -
地代 - セットバック -
現況 上物有 国土法届出 不要
引渡条件/時期 更地渡し / 相談 取引態様 専属
設備その他 -
特記事項 緑化地域、居住誘導区域内、都市機能誘導区域内
備考 -
公開日 2026/04/12 広告有効期限 2026/04/26
担当者 内山 順喜
電話でお問い合わせ
センチュリー21 P-EIGHT 店舗情報
[所在地] 愛知県名古屋市北区黒川本通4丁目30番 黒川旗ビル1階
[担当] 内山 順喜
Tel052-908-3343
お気軽にお問い合わせください。

このページをご覧の方に
おすすめの不動産物件