売買 新築一戸建て | 豊田市朝日町 | 名古屋市の不動産はセンチュリー21 P-EIGHT

豊田市朝日町の不動産物件

【新築一戸建て】 NEW! 新築 駐車場あり
価格 3,999万円 (税込)
愛知環状鉄道 新豊田駅 徒歩24分
スマホ表示
物件コード:167801-4407
所在地 建物面積
土地面積
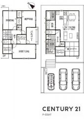
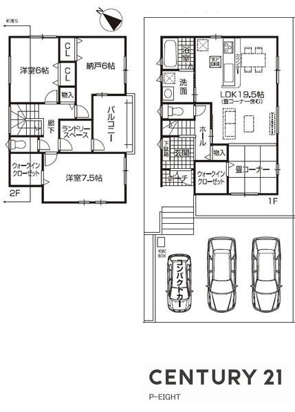
間取り 築年月
愛知県豊田市朝日町 106.52m2
131.24m2
3LDK 2025/03

物件基本情報

▲外観
▲間取り図
物件種目 新築一戸建て
物件名称 -
所在地 愛知県豊田市朝日町
交通
愛知環状鉄道 新豊田駅 徒歩24分
名鉄三河線 豊田市駅 徒歩27分
名鉄豊田線 豊田市駅 徒歩27分
階数 2階建
建物構造 木造
建ぺい率/容積率 60% / 100%
駐車場 有 (3台)
学校 朝日小学校 / 崇化館中学校
設備・条件
  • ガス:都市ガス
  • 汚水:公共下水
  • 水道:公営水道
  • 雑排水:公共下水
  • フローリング
  • システムキッチン
  • シャンプードレッサー
  • 追い焚き
  • 洗浄便座
  • ガスコンロ
  • Wクローゼット
  • 床下収納
  • TVドアホン
  • コンロ三口
  • カウンターキッチン
  • 浴室乾燥機
  • シャワー
  • バルコニー
  • 日当り良好
  • 浄水器
  • 浴室1坪以上
  • オートバス
  • トイレ2ヶ所
  • 複層ガラス
センチュリー21 P-EIGHT
Tel052-908-3343
お気軽にお問い合わせください。

画像・写真

  • 全体区画図
    全体区画図
  • 玄関
    玄関
  • リビング
    リビング
  • リビング
    リビング
  • 畳コーナー
    畳コーナー
  • キッチン
    キッチン
  • 三口コンロ
    三口コンロ
  • ステンレスシンク
    ステンレスシンク
  • 洗面台
    洗面台
  • 浴室
    浴室
  • トイレ
    トイレ
  • 洋室
    洋室
  • 洋室
    洋室
  • ランドリースペース
    ランドリースペース
  • ウォークインクローゼット
    ウォークインクローゼット
  • ウォークインクローゼット
    ウォークインクローゼット
  • クローゼット
    クローゼット
  • バルコニー
    バルコニー
  • 浴室暖房乾燥機
    浴室暖房乾燥機
  • 給湯リモコン
    給湯リモコン
  • モニター付きインターホン
    モニター付きインターホン
  • 前面道路
    前面道路

周辺地図

地図を表示中...
ストリートビュー未対応エリアです。

物件詳細情報

物件用途 居住用 地目 宅地
間取り詳細 - 都市計画 -
建物向き - 用途地域 第一種低層住居専用地域
土地面積基準 公簿 接道 公道 南西 幅員4.7m
土地権利 所有権 私道面積 -
借地条件 - 道路位置指定 -
地代 - 不適合接道 -
建築確認番号 第R06確認建築愛建住セ24341号 セットバック -
現況 新築 国土法届出 不要
引渡時期 相談 取引態様 仲介
設備その他 -
特記事項 -
備考 -
公開日 2025/11/22 広告有効期限 2025/12/06
担当者 近藤 裕美
電話でお問い合わせ
センチュリー21 P-EIGHT 店舗情報
[所在地] 愛知県名古屋市北区黒川本通4丁目30番 黒川旗ビル1階
[担当] 近藤 裕美
Tel052-908-3343
お気軽にお問い合わせください。

このページをご覧の方に
おすすめの不動産物件