売買 新築一戸建て | 安城市里町 | 名古屋市の不動産はセンチュリー21 P-EIGHT

安城市里町の不動産物件

【新築一戸建て】 NEW! 新築 駐車場あり
価格 3,499万円 (税込)
名鉄名古屋本線 新安城駅 徒歩20分
スマホ表示
物件コード:167801-4416
所在地 建物面積
土地面積
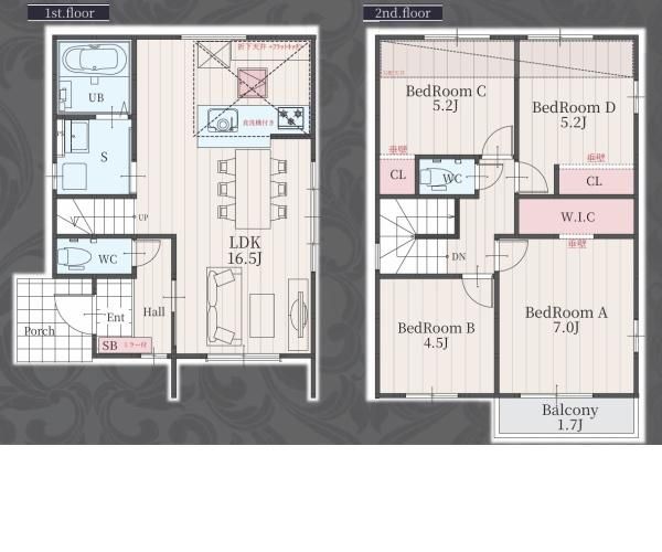
間取り 築年月
愛知県安城市里町 89.84m2
102.68m2
4LDK 2025/08

物件基本情報

▲外観
▲間取り図
物件種目 新築一戸建て
物件名称 -
所在地 愛知県安城市里町
交通
名鉄名古屋本線 新安城駅 徒歩20分
名鉄西尾線 新安城駅 徒歩20分
名鉄三河線 三河八橋駅 徒歩40分
階数 2階建
建物構造 木造
建ぺい率/容積率 60% / 100%
駐車場 有 (2台)
学校 里町小学校 / 東山中学校
設備・条件
  • ガス:都市ガス
  • 汚水:公共下水
  • 水道:公営水道
  • 雑排水:公共下水
  • フローリング
  • システムキッチン
  • シャンプードレッサー
  • 追い焚き
  • 洗浄便座
  • ガスコンロ
  • Wクローゼット
  • TVドアホン
  • コンロ三口
  • カウンターキッチン
  • 浴室乾燥機
  • シャワー
  • 給湯器
  • バルコニー
  • 設計住宅性能評価付
  • 食器洗乾燥機
  • 浄水器
  • 浴室1坪以上
  • オートバス
  • トイレ2ヶ所
  • 複層ガラス
センチュリー21 P-EIGHT
Tel052-908-3343
お気軽にお問い合わせください。

画像・写真

  • 区画図
    区画図
  • 玄関
    玄関
  • リビング
    リビング
  • リビング
    リビング
  • キッチン
    キッチン
  • キッチン
    キッチン
  • 食器洗浄乾燥機
    食器洗浄乾燥機
  • 三口ガスコンロ
    三口ガスコンロ
  • 給湯リモコン
    給湯リモコン
  • モニター付きインターホン
    モニター付きインターホン
  • 洗面所
    洗面所
  • 浴室
    浴室
  • 浴室暖房乾燥機
    浴室暖房乾燥機
  • トイレ
    トイレ
  • 洋室
    洋室
  • 洋室
    洋室
  • ウォークインクローゼット
    ウォークインクローゼット
  • クローゼット
    クローゼット
  • バルコニー
    バルコニー
  • 眺望
    眺望
  • 前面道路
    前面道路

周辺地図

地図を表示中...
ストリートビュー未対応エリアです。

物件詳細情報

物件用途 居住用 地目 宅地
間取り詳細 - 都市計画 -
建物向き - 用途地域 第一種低層住居専用地域
土地面積基準 公簿 接道 公道 南西 幅員4.1m
土地権利 所有権 私道面積 -
借地条件 - 道路位置指定 -
地代 - 不適合接道 -
建築確認番号 第KS125-0410-53173号 セットバック -
現況 新築 国土法届出 届出要
引渡時期 相談 取引態様 仲介
設備その他 -
特記事項 法22条区域、下水処理区域、日影規制
備考 -
公開日 2026/01/06 広告有効期限 2026/01/20
担当者 近藤 裕美
電話でお問い合わせ
センチュリー21 P-EIGHT 店舗情報
[所在地] 愛知県名古屋市北区黒川本通4丁目30番 黒川旗ビル1階
[担当] 近藤 裕美
Tel052-908-3343
お気軽にお問い合わせください。

このページをご覧の方に
おすすめの不動産物件