売買 新築一戸建て | 弥富市平島東 | 名古屋市の不動産はセンチュリー21 P-EIGHT

弥富市平島東の不動産物件

【新築一戸建て】 NEW! 新築
価格 2,980万円 (税込)
近鉄名古屋線 近鉄弥富駅 徒歩27分
スマホ表示
物件コード:167801-4481
所在地 建物面積
土地面積
間取り 築年月
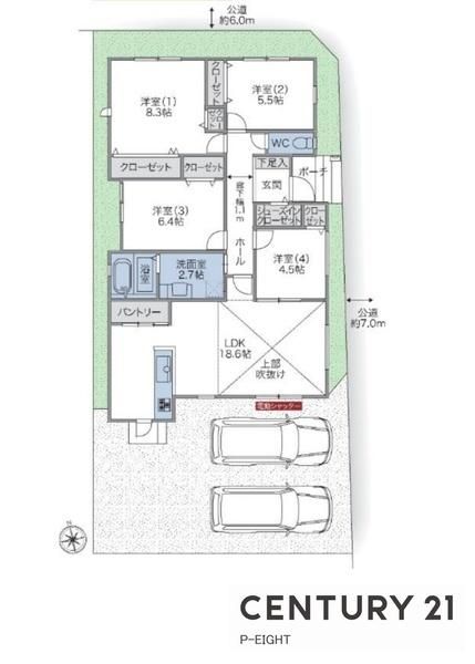
愛知県弥富市平島東 98.25m2
202.07m2
4LDK 2025/03

物件基本情報

▲外観
▲間取り図
物件種目 新築一戸建て
物件名称 -
所在地 愛知県弥富市平島東
交通
近鉄名古屋線 近鉄弥富駅 徒歩27分
近鉄名古屋線 佐古木駅 徒歩27分
関西本線 弥富駅 徒歩29分
階数 1階建
建物構造 木造
建ぺい率/容積率 60% / 200%
駐車場 -
学校 日の出小学校 / 弥富中学校
設備・条件
  • ガス:集中プロパン
  • 汚水:公共下水
  • 水道:公営水道
  • 雑排水:公共下水
  • フローリング
  • システムキッチン
  • シャンプードレッサー
  • 追い焚き
  • 洗浄便座
  • ガスコンロ
  • TVドアホン
  • コンロ三口
  • 浴室乾燥機
  • シャワー
  • 給湯器
  • 日当り良好
  • 長期優良住宅
  • 設計住宅性能評価付
  • 浄水器
  • 浴室1坪以上
  • オートバス
  • トイレ2ヶ所
  • 複層ガラス
  • 耐震構造
  • 建設住宅性能評価書(新築時)
  • フラット35・S適合証明書
センチュリー21 P-EIGHT
Tel052-908-3343
お気軽にお問い合わせください。

画像・写真

  • 区画図
    区画図
  • 玄関
    玄関
  • リビング
    リビング
  • リビング
    リビング
  • リビング
    リビング
  • キッチン
    キッチン
  • 浄水器付き水栓
    浄水器付き水栓
  • 食器洗浄乾燥機
    食器洗浄乾燥機
  • 三口ガスコンロ
    三口ガスコンロ
  • 洗面所
    洗面所
  • 浴室
    浴室
  • トイレ
    トイレ
  • 洋室
    洋室
  • 洋室
    洋室
  • クローゼット
    クローゼット
  • 収納
    収納
  • 浴室暖房乾燥機
    浴室暖房乾燥機
  • モニター付きインターホン
    モニター付きインターホン
  • 給湯リモコン
    給湯リモコン
  • 前面道路
    前面道路

周辺地図

地図を表示中...
ストリートビュー未対応エリアです。

物件詳細情報

物件用途 居住用 地目 宅地
間取り詳細 - 都市計画 市街化区域
建物向き - 用途地域 第一種住居地域
土地面積基準 公簿 接道 公道 北 幅員6m
公道 西 幅員7m
土地権利 所有権 私道面積 -
借地条件 - 道路位置指定 -
地代 - 不適合接道 -
建築確認番号 第KS124-0410-63592号 セットバック -
現況 新築 国土法届出 不要
引渡時期 相談 取引態様 仲介
設備その他 -
特記事項 -
備考 -
公開日 2025/12/04 広告有効期限 2025/12/18
担当者 近藤 裕美
電話でお問い合わせ
センチュリー21 P-EIGHT 店舗情報
[所在地] 愛知県名古屋市北区黒川本通4丁目30番 黒川旗ビル1階
[担当] 近藤 裕美
Tel052-908-3343
お気軽にお問い合わせください。

このページをご覧の方に
おすすめの不動産物件