売買 中古一戸建て | 名古屋市西区天塚町 | 名古屋市の不動産はセンチュリー21 P-EIGHT

名古屋市西区天塚町の不動産物件

【中古一戸建て】 NEW! 駐車場あり
価格 3,320万円 (税無)
名古屋市鶴舞線 庄内通駅 徒歩10分
スマホ表示
物件コード:167801-4991
所在地 建物面積
土地面積
間取り 築年月
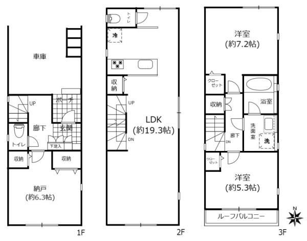
愛知県名古屋市西区天塚町 100.91m2
53.46m2
3LDK 2021/11

物件基本情報

▲間取り図
▲区画図
物件種目 中古一戸建て
物件名称 -
所在地 愛知県名古屋市西区天塚町
交通
名古屋市鶴舞線 庄内通駅 徒歩10分
名古屋市鶴舞線 浄心駅 徒歩15分
名古屋市名城線 黒川駅 徒歩22分
階数 3階建
建物構造 木造
建ぺい率/容積率 60% / 200%
駐車場
学校 稲生小学校 / 名塚中学校
設備・条件
  • ガス:都市ガス
  • 汚水:公共下水
  • 水道:公営水道
  • 雑排水:公共下水
  • フローリング
  • システムキッチン
  • ガスコンロ
  • TVドアホン
  • コンロ三口
  • カウンターキッチン
  • シャワー
  • バルコニー
  • トイレ2ヶ所
センチュリー21 P-EIGHT
Tel052-908-3343
お気軽にお問い合わせください。

画像・写真

  • リビング
    リビング

周辺地図

地図を表示中...
ストリートビュー未対応エリアです。

物件詳細情報

物件用途 居住用 地目 宅地
間取り詳細 - 都市計画 市街化区域
建物向き 用途地域 第一種住居地域
土地面積基準 公簿 接道 公道 北 幅員5.5m
土地権利 所有権 私道面積 -
借地条件 - 道路位置指定 -
地代 - 不適合接道 -
建築確認番号 - セットバック -
現況 居住中 国土法届出 不要
引渡時期 相談 取引態様 一般
設備その他 -
特記事項 都市緑地法、水防法、都市再生特別措置法
備考 -
公開日 2026/04/12 広告有効期限 2026/04/26
担当者 近藤 裕美
電話でお問い合わせ
センチュリー21 P-EIGHT 店舗情報
[所在地] 愛知県名古屋市北区黒川本通4丁目30番 黒川旗ビル1階
[担当] 近藤 裕美
Tel052-908-3343
お気軽にお問い合わせください。

このページをご覧の方に
おすすめの不動産物件