売買 中古一戸建て | 名古屋市千種区上野 | 名古屋市の不動産はセンチュリー21 P-EIGHT

名古屋市千種区上野の不動産物件

【中古一戸建て】 NEW! 駐車場あり
価格 4,380万円 (税無)
名古屋市名城線 砂田橋駅 徒歩10分
スマホ表示
物件コード:167801-5032
所在地 建物面積
土地面積
間取り 築年月
愛知県名古屋市千種区上野 104.84m2
80.00m2
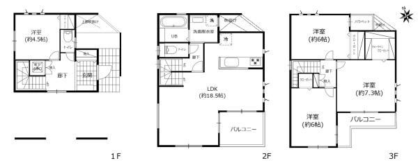
4LDK 2017/08

物件基本情報

▲間取り図
▲区画図
物件種目 中古一戸建て
物件名称 -
所在地 愛知県名古屋市千種区上野
交通
名古屋市名城線 砂田橋駅 徒歩10分
バス停「谷口」 徒歩2分
名古屋市名城線 茶屋ヶ坂駅 徒歩15分
名古屋市名城線 ナゴヤドーム前矢田駅 徒歩22分
階数 3階建
建物構造 木造
建ぺい率/容積率 60% / 200%
駐車場 有 (2台)
学校 上野小学校 / 振甫中学校
設備・条件
  • ガス:都市ガス
  • 汚水:公共下水
  • 水道:公営水道
  • 雑排水:公共下水
  • フローリング
  • システムキッチン
  • シャンプードレッサー
  • 追い焚き
  • 洗浄便座
  • ガスコンロ
  • Wクローゼット
  • TVドアホン
  • コンロ三口
  • カウンターキッチン
  • シャワー
  • バルコニー
  • 日当り良好
  • 浴室1坪以上
  • オートバス
  • トイレ2ヶ所
  • ワイドバルコニー
センチュリー21 P-EIGHT
Tel052-908-3343
お気軽にお問い合わせください。

周辺地図

地図を表示中...
ストリートビュー未対応エリアです。

物件詳細情報

物件用途 居住用 地目 宅地
間取り詳細 - 都市計画 市街化区域
建物向き - 用途地域 第二種中高層住居専用地域
土地面積基準 公簿 接道 公道 北 幅員5.94m
公道 東 幅員7.94m
土地権利 所有権 私道面積 -
借地条件 - 道路位置指定 -
地代 - 不適合接道 -
建築確認番号 - セットバック -
現況 居住中 国土法届出 不要
引渡時期 相談 取引態様 専属
設備その他 -
特記事項 都市緑地法、緑化地域、都市再生特別措置法
備考 -
公開日 2026/03/02 広告有効期限 2026/03/16
担当者 近藤 裕美
電話でお問い合わせ
センチュリー21 P-EIGHT 店舗情報
[所在地] 愛知県名古屋市北区黒川本通4丁目30番 黒川旗ビル1階
[担当] 近藤 裕美
Tel052-908-3343
お気軽にお問い合わせください。

このページをご覧の方に
おすすめの不動産物件